Wohnung, Kauf, Leipzig
Septima Immobilien
Verkauf einer Eigentumswohnung im angesagten Stadtteil Leipzig Plagwitz.

Verkauf einer Eigentumswohnung im angesagten Stadtteil Leipzig Plagwitz.

Objektbeschreibung

Das Gebäude wurde um 1890 errichtet, ist voll unterkellert und beherbergt insgesamt zwölf Einheiten. 1997/98 wurde das denkmalgeschützte Gebäude kernsaniert. 2017 wurde der Heizkessel zugunsten einer modernen Heizung mit Brennwerttechnik ersetzt.



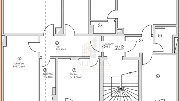
Die Eigentumswohnung Nr. 03 befindet sich im 1. Obergeschoß.

Lage

Der Leipziger Stadtteil Plagwitz liegt zirka zwei Kilometer entfernt von der Innenstadt im Stadtbezirk West. Das Areal erstreckt sich über den Stadtteil Alt-Lindenau bis hin zu den gründerzeitlichen Wohngebieten des Stadtteils Plagwitz.

Im Volksmund hat das Gebiet zwischenzeitlich die Bezeichnung „Leipziger Westen“ erhalten. Plagwitz selbst hat in den letzten Jahren einen deutlichen Imagewandel vollzogen. Aus dem von Industriebrachen geprägten Gebiet ist ein angesagter Stadtteil für junge Leipziger und Familien geworden. Immer mehr kreative Akteure fassen Fuß in Lindenau und Plagwitz. Im Schatten der „Baumwollspinnerei“ als erste Adresse für internationale Kunst in Leipzig hat die Kreativwirtschaft Wurzeln geschlagen. Zahlreiche Freiberufler und Firmen siedeln sich an und schaffen ein zeitgemäßes Umfeld für urbanes Leben.

Sonstiges

Angaben zur Immobilie

Objektart
Etagenwohnung
Zimmer
3
Schlafzimmer
2
Badezimmer
1
Balkone
1
Wohnfläche
83,96 m²
Zustand des Objektes
Gepflegt
Verkaufsstatus
verkauft
Verfügbar ab
sofort

Energieausweis

Erstellungsdatum
nicht nötig

Ausstattung

Heizungsart
Zentralheizung
Befeuerung
Gas
Kabel / Sat- TV

Die Wohnung verfügt über:

- 3 Zimmer, Küche, Tageslichtbad mit Wanne, Balkon

- Kellerabteil

3

Zimmer

83,96 m²

Wohnfläche

sofort

Verfügbar ab

Adresse

Karl-Heine-Str. 61
04229 Leipzig

Ansprechpartner

SEPTIMA Immobilienorganisation e. K.

E-MailDiese E-Mail-Adresse ist vor Spambots geschützt! Zur Anzeige muss JavaScript eingeschaltet sein.
Webseptima.de

Bilder

Verkauf einer Eigentumswohnung im angesagten Stadtteil Leipzig Plagwitz.
Verkauf einer Eigentumswohnung im angesagten Stadtteil Leipzig Plagwitz.
Verkauf einer Eigentumswohnung im angesagten Stadtteil Leipzig Plagwitz.