Nirgendwo sonst als in und um Naumburg ist in Europa (vielleicht noch die Umgebung von Siena in der Toskana) und damit in der Welt aus der Zeit des Mittelalters ein derartiges Gesamtensemble an Befestigungsanlagen, Profan- und Sakralbauten auf so engem Raum erhalten. Als einzigartiges Zeugnis der mittelalterlichen Architektur und Kunst des 13. Jahrhunderts wurde der Naumburger Dom 2018 in die UNESCO- Welterbeliste eingeschrieben. Naumburg ist Verwaltungssitz des Burgenlandkreises, des Oberlandesgerichtes und der Generalstaatsanwaltschaft Sachsen- Anhalt. Das in und um Naumburg der Weinanbau prägend ist, ist wohlbekannt.
Hin und zurück
Soweit innerstädtisch nicht zu Fuß oder mit dem Fahrrad erreichbar, werden alle Ziele im örtlichen Nahverkehr mit der Straßenbahn oder dem Bus erreicht.
Vom Naumburger Hauptbahnhof aus ist man in 45 Minuten in Leipzig oder Halle, in 25 min in Jena (Paradies). Die Autobahn A9 hat in 18 km Entfernung die Anschlußstelle „Naumburg“ zu bieten. Zum Flughafen Leipzig-Halle gelangt man auf verschiedenen Routen in 50 Minuten.
Das Objekt liegt ganz innenstadtnah, direkt bei der Kirche St. Othmar und nah beim Naumburger Dom, den man von hier aus erspähen kann. Alle Besorgungen lassen sich fußläufig erledigen, Kindergärten, Schulen und Ärzte stehen in unmittelbarer Umgebung für Besuche offen.
Infrastruktur
Zentrum
0,40 km
Gymnasium
1 km
Autobahn
18 km
Kindergarten
1 km
Grundschule
1 km
Realschule
1 km
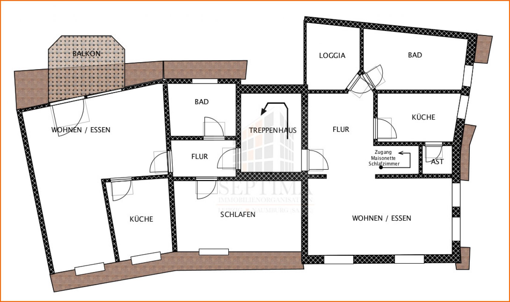
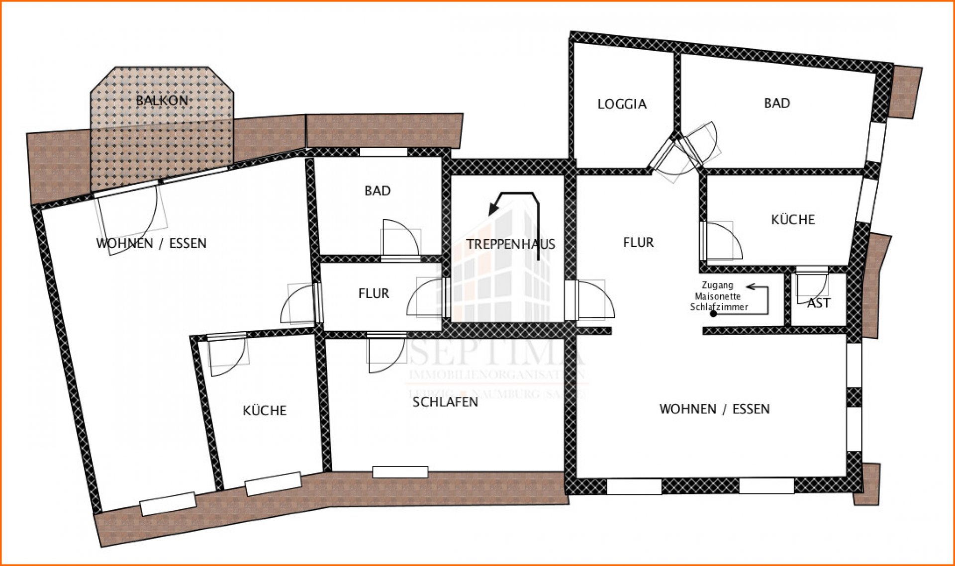
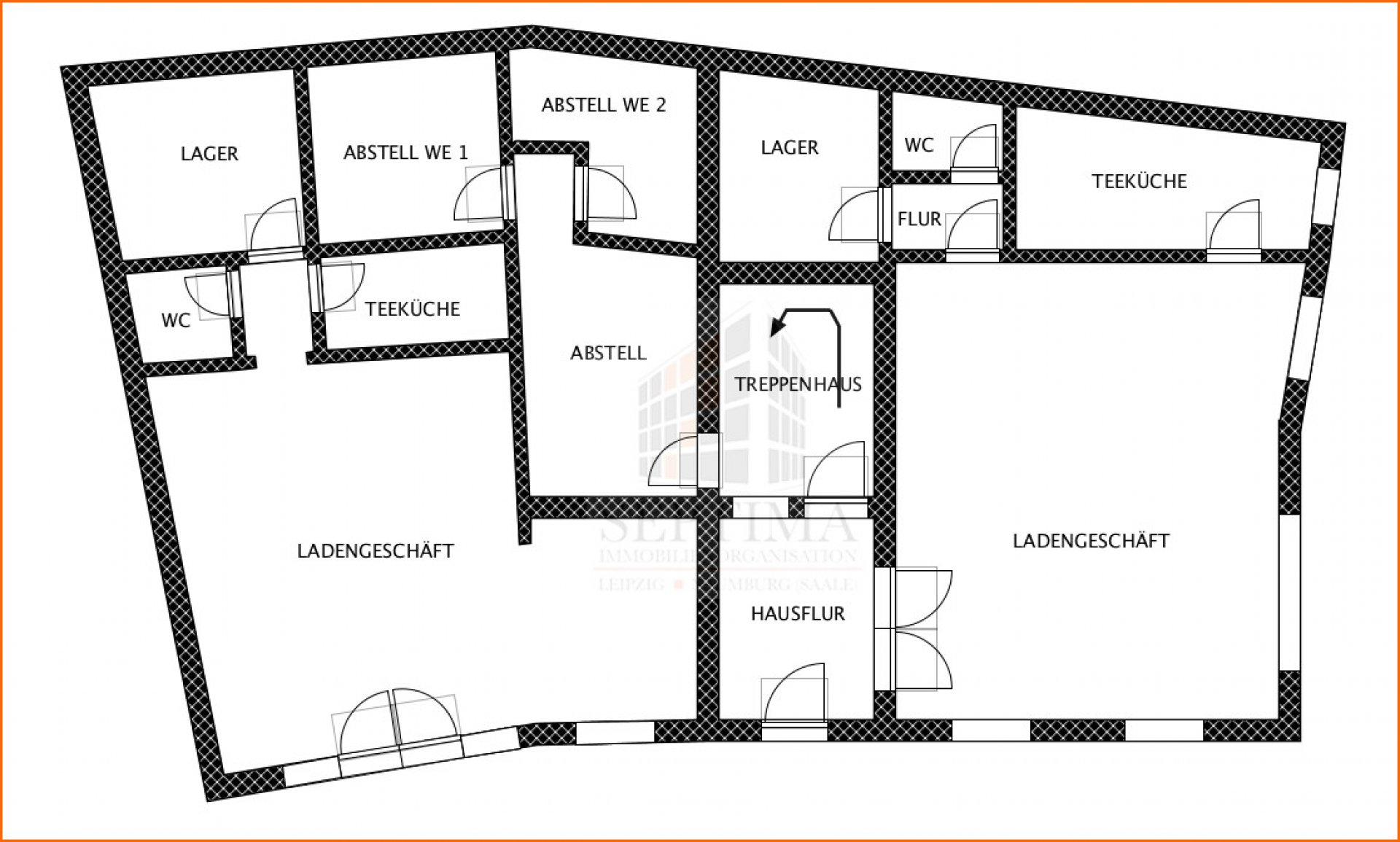
Objektbeschreibung
Zum Verkauf steht ein im Jahr 2001 hochwertig errichtetes dreigliedriges Gebäudeensemble als Wohn- und Geschäftshaus in innerstädtischer Lage von Naumburg (Saale).
Das Gebäudeensemble befindet sich in einem gepflegten Zustand und besteht aus zwei Gewerbeeinheiten und vier Wohnungen.
Die Wohn- und Gewerbeeinheiten sind über ein zentrales Treppenhaus erschlossen.
Ausstattung
Heizungsart
Zentralheizung
Befeuerung
Gas
Kabel / Sat- TV
Unterkellert
Nein
๏ 2 Gewerbeeinheiten
๏ 4 Wohneinheiten
๏ Gasheizung zentral mit
Warmwasseraufbereitung
๏ Videowechselsprechanlage
๏ Baujahr: 2001
๏ kein Keller
๏ kein Innenhof
๏ Kaltmieteinnahme p. a.: 27.570,00 €
12
Zimmer
430,41 m²
Wohnfläche
209 m²
Grundstücksfläche
Adresse
06618 Naumburg (Saale)
Kontaktanfrage
Ansprechpartner
SEPTIMA Immobilienorganisation e. K.
E-MailDiese E-Mail-Adresse ist vor Spambots geschützt! Zur Anzeige muss JavaScript eingeschaltet sein.Webseptima.de