Die Stadt im anhaltinischen Burgenlandkreis zählt um die 2.800 Einwohner und macht einen lebhaften und einladenden Eindruck, der sich aus einer angenehmen kleinstädtischen Atmosphäre ergibt. Im Zentrum von Osterfeld befindet sich der Marktplatz mit dem Rathaus, der Kirche und einem Geflecht aus engen Altstadtgassen. Hier findet man auch zahlreiche lokale Einkaufsmöglichkeiten wie Apotheke und Sparkasse, Bäckerei und Blumenladen. Am Ortsausgang befindet sich zudem ein Supermarkt - die alltäglichen Einkaufswege sind also überschaubar.
Osterfeld ist eine hügelige Stadt, die sich, vom Marktplatz ausgehend, als Mischung aus älteren und neuen Eigenheimen, Mehrfamilienhäusern und Reihen von Neubauten präsentiert. Dazwischen finden sich bunt blühende Gärten und grüne Wiesen.
Osterfeld verfügt über drei Kindertagesstätten und eine Grundschule.
Hin und zurück
Zu erreichen ist Osterfeld zum einen über die A9, die in unmittelbarer Nähe verläuft (Autobahnabfahrt Naumburg/Osterfeld). Mit dem Auto ist man in ca. 40 Minuten am Flughafen Leipzig-Halle. Zudem befindet sich die B180 ganz in der Nähe.
Die Buslinien 618 und 818, 621 und 821 der PVG Burgenlandkreis sind im Ort unterwegs, und die nächsten Haltestellen der DB und der Burgenlandbahn befinden sich in Naumburg und Zeitz.
Objektbeschreibung
Es bietet sich hier die Gelegenheit zum Kauf eines gepflegten freistehenden Einfamilienhauses in Osterfeld.
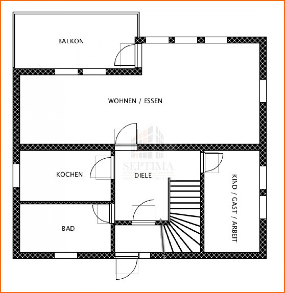
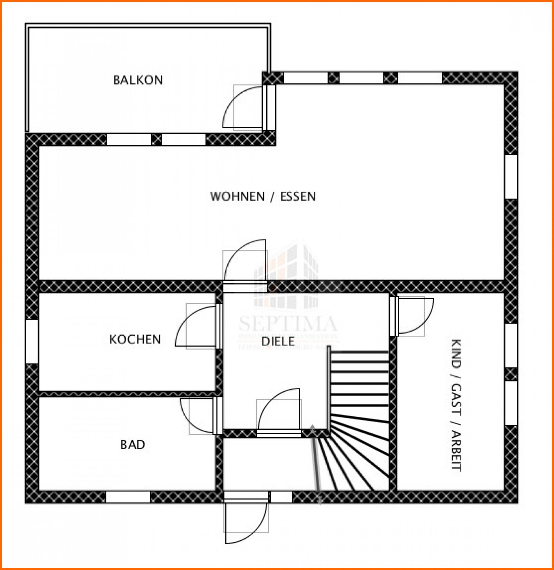
Es steht frei auf einem nahezu rechteckigen Grundstück mit liebevoll angelegtem Garten. Das Haus ist in einem gepflegten Zustand, bietet fünf Zimmer, Bad, WC, einen großen terrassenartigen Balkon und ist voll unterkellert. Auch eine Garage und ein Hobbyraum sind vorhanden.
Sonstiges
Ausstattung
Heizungsart
Zentralheizung
Befeuerung
Öl
Unterkellert
Ja
๏ 5 Zimmer auf zwei Ebenen, 1 Bad, 1 WC, Balkon, Massivgarage
๏ zusätzlich Dusche, Toilette, Waschtisch, Waschmaschinenanschluß im Keller
๏ Tageslichtbad (Erdgeschoß) mit Eckwanne, Waschtisch
๏ separate Küche
๏ Ölheizung (Bj. 1995) zentral mit Warmwasseraufbereitung (Erdgas liegt in der Straße an)
๏ Wirtschafts-/Garteneingang zum Keller
๏ Garage
๏ Vorgarten
๏ Baujahr: 1974
๏ fortlaufend instandgehalten
๏ Dach ca. 2011 neu eingedeckt
๏ Giebel 2020 erneuert
๏ Die Außendämmung aus dem Baujahr ist mit Asbestzementtafeln verkleidet, die wiederum mit einem Silikatputz beschichtet sind
๏ alle Fenster zweifach isolierverglast mit Rolläden, ca. 2011
๏ kein Reparaturrückstau
5
Zimmer
111 m²
Wohnfläche
2.490 m²
Grundstücksfläche
Adresse
06721 Osterfeld
Kontaktanfrage
Ansprechpartner
SEPTIMA Immobilienorganisation e. K.
E-MailDiese E-Mail-Adresse ist vor Spambots geschützt! Zur Anzeige muss JavaScript eingeschaltet sein.Webseptima.de