Die angebotene 2 Raumwohnung befindet sich im Dachgeschoß eines 1900 erbauten und 1998 vollständig und hochwertig sanierten Mehrfamilienhauses perfekt liegend zwischen dem Leipziger Zoo und der Innenstadt. Auch das Rosental ist nur wenige Meter entfernt.
Die Wohnung verfügt über:
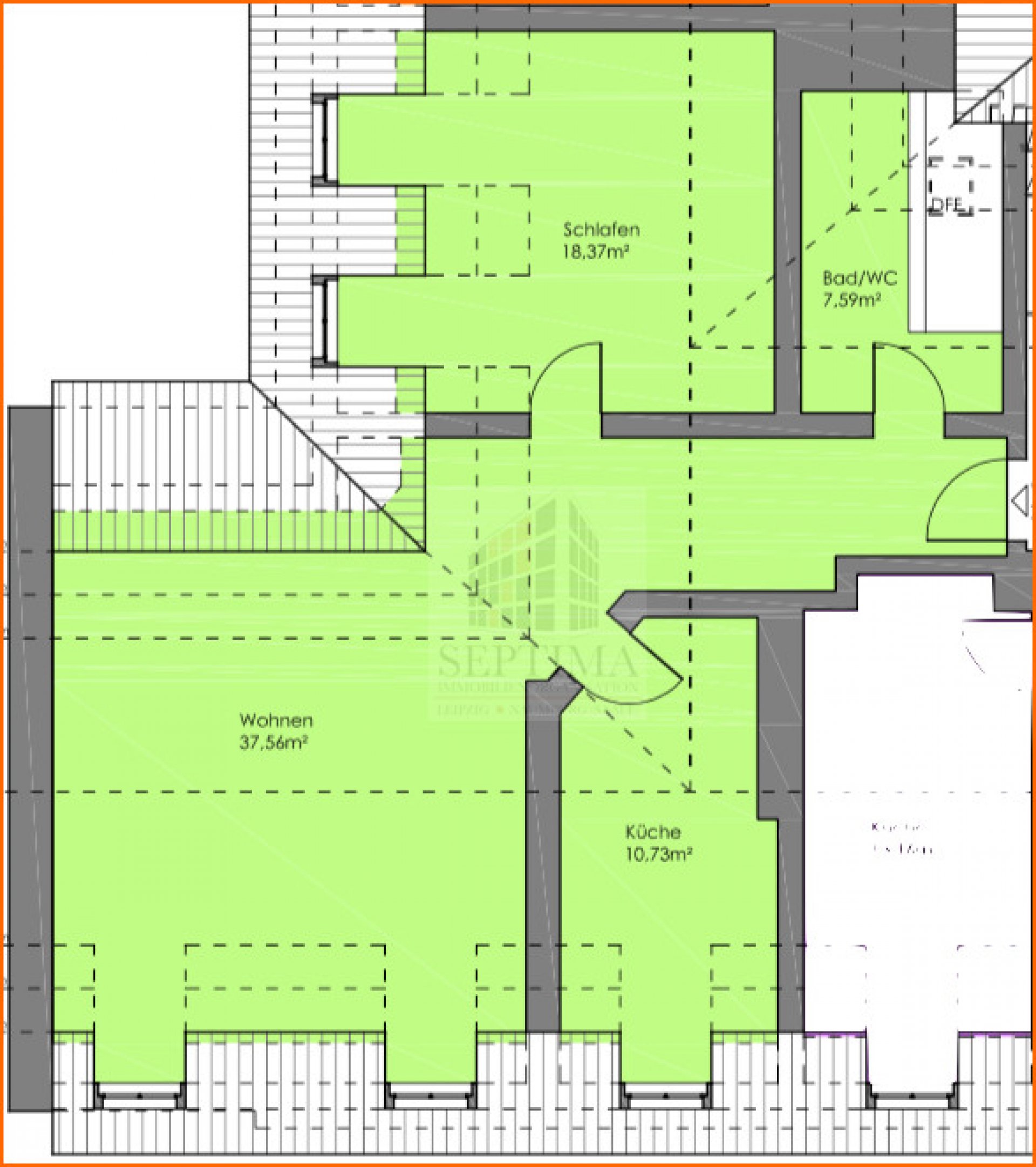
-großes Wohnzimmer,
-separate Küche mit Einbauküche,
-Schlafzimmer hofseitig,
-Badezimmer mit Wanne und Waschmaschinenanschluß
-Fahrstuhl im Haus,
-Wechselsprechanlage,
-Gasetagenheizung
2
Zimmer74,25 m²
Wohnflächesofort
Verfügbar ab04105 Leipzig / Zentrum-Nordwest
Ansprechpartner
SEPTIMA Immobilienorganisation e. K.