Kaiserpfalz ist eine Gemeinde im Burgenlandkreis in Sachsen-Anhalt. Die Gemeinde liegt zwischen Halle (Saale), Naumburg (Saale), Weimar und Erfurt. Sie wurde zum 1. Juli 2009 aus dem freiwilligen Zusammenschluss der Gemeinden Bucha, Memleben und Wohlmirstedt gebildet.
Wie die meisten Dörfer des Unstruttales ist das Dorf Wohlmirstedt, zu dem bis 2009 die Ortsteile Allerstedt und Zeisdorf gehörten, weit über 1000 Jahre alt. 786 wurde der Ort Wohlmirstedt erstmals als „Wolmerstede“ erwähnt.
Es bietet sich hier die Gelegenheit zum Kauf eines gepflegten freistehenden Einfamilienhauses in Kaiserpfalz, OT Wohlmirstedt.
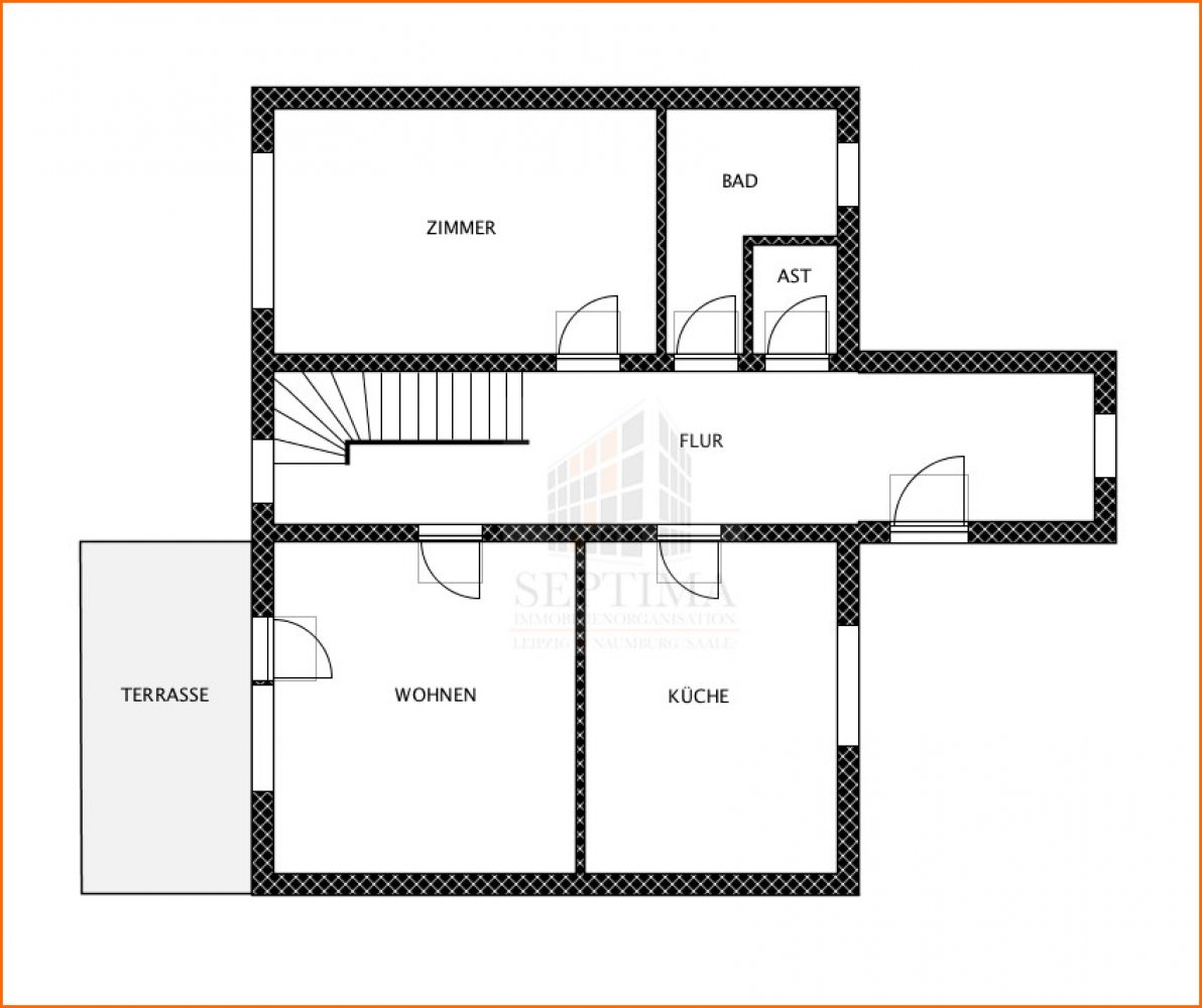
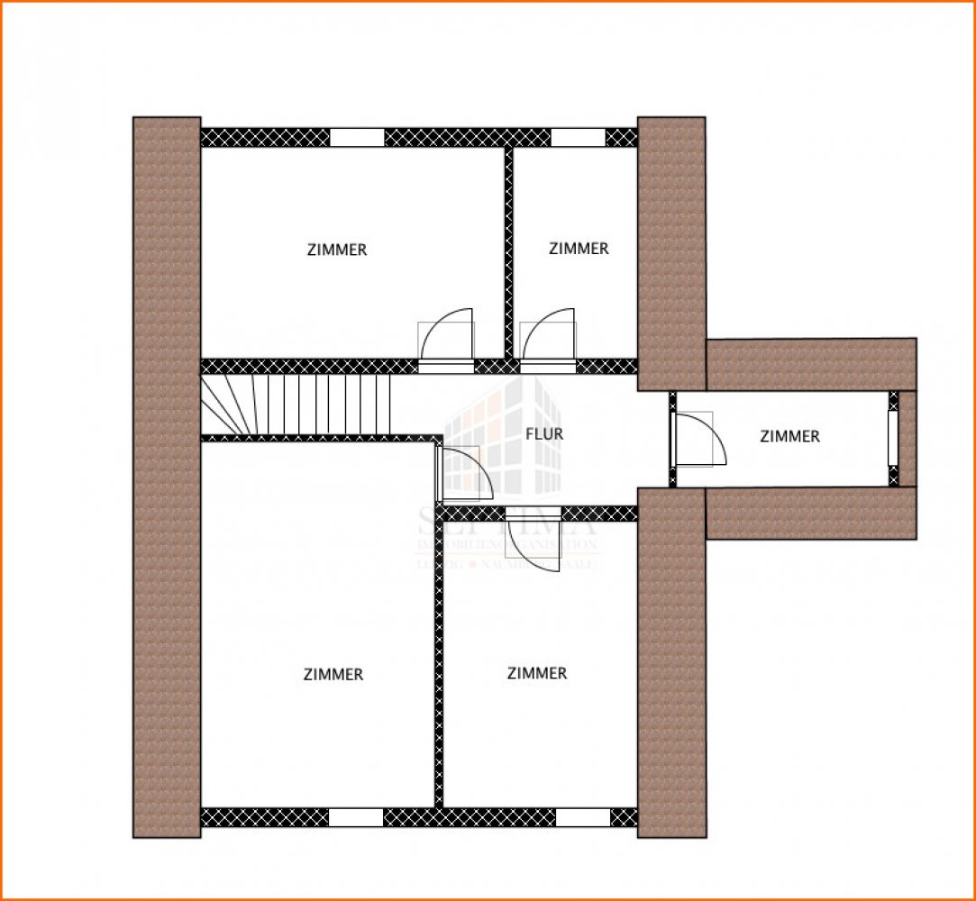
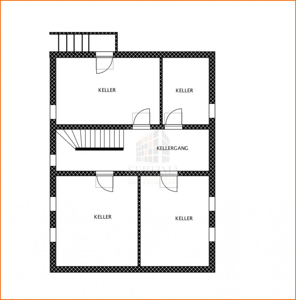
Es steht frei auf einem gut geschnittenen Grundstück mit liebevoll angelegtem Garten. Das Haus ist in einem sehr gepflegten Zustand, bietet sieben Zimmer, Küche, Bad, eine große Terrasse (ca. 15 m2) und ist unterkellert. Eine Garage und genügend Hobby- und Abstellflächen im Nebengelaß runden das Raumangebot ab.
๏ 7 Zimmer auf zwei Ebenen, 1 Bad, 1 Küche, Terrasse
๏ zusätzlich Dusche, Waschmaschinenanschluß im Keller
๏ Tageslichtbad (Erdgeschoß) mit Badewanne, Waschtisch
๏ große Wohnküche
๏ Ölheizung Bj. 1997 mit
ausreichendem Tank (4.500 l)
๏ alle Fenster zweifach isolierverglast
mit Rolläden, ca. 1997
๏ 1 Garage
๏ Vorgarten
๏ Baujahr: 1973 nebst Anbau 2000
๏ fortlaufend instandgehalten
๏ Dach gedämmt und neu eingedeckt,
Dachentwässerung komplett
erneuert (ca. 2000)
๏ ELT-Anlage 1997 bis 2000 erneuert
๏ Abwasser ans öffentliche Netz
angeschlossen - keine Grube
๏ DSL Internet angeschlossen, Sat-TV-
Anlage installiert
๏ kein Reparaturrückstau
7
Zimmer140 m²
Wohnfläche628 m²
Grundstücksfläche06642 Kaiserpfalz
Ansprechpartner
SEPTIMA Immobilienorganisation e. K.